文章分类
产品导航
联系方式A级洁净区专用液槽龙骨百级层流罩系统
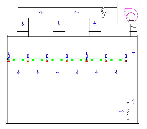
A级洁净区专用液槽龙骨百级层流罩系统
A级区百级层流罩是空气以一定地风速通过高效过滤器后,形成均流层,使洁净空气呈垂直单向流,从而保证了工作区内达到工艺要求的高洁净度, 百级层流应用于精密电子装置操作间及制药车间安全洗烘灌封流水线、抗生素瓶洗烘灌封流水线,口服液瓶洗烘灌封流水线,大输液生产线上的洁净送风处理等环境广泛使用。
铝型材液槽龙骨百级层流系统采用液槽龙骨和带刀口过滤器组合成百级层流系统,很好的解决了过滤器边框泄露问题,PAO现场验证问题,送风风速过小和过滤器使用寿命太短问题,同时也节约了大量天花安装空间,维护也比较简单,这是一种新的解决方案,非常适合药厂新项目和改造项目。
铝型材液槽龙骨百级层流罩系统特点如下:
1、液槽密封,密封性能好,确保一次性通过PAO泄露测试。
2、采用离心风机,送风风速可达0.36m/s~0.54m/s以上,风机全压大,过滤器使用寿命长。
3、风机安装在A级区室外,所以噪音比较小。
4、采用铝型材龙骨,不需要散流板和均流膜,既节约空间又美观。
5、龙骨支架也可以用304不锈钢板制作。
6、风机通过变频器,可调节送风风速。
7、送风均匀性好,气流流型好,
8、风机在空调箱里,维修风机方便,过滤器可下方安装,安装比较方便。
9、龙骨采用铝型材和L型、T型、十型接头拼装组成,设计灵活,安装方便。
国外已经使用很多年,技术比较成熟,目前国内开始有很多药厂采用。
系统原理图


原文来源:http://www.jiejingfang.com/
上一条:FFU净化器使用心得下一条:一种创新的FFU箱体专利介绍

